配電用モールド変圧器
標準付属品・オプション 特長

配電用モールド変圧器

![低圧配電用単相・三相・スコット結線変圧器 保護ケース[略称:ホゴケース]](/fa/products/taca/trns/pmerit/dry/option/img/fig_opt-l09a-01.png)
![低圧配電用単相・三相・スコット結線変圧器 保護ケース[略称:ホゴケース]](/fa/products/taca/trns/pmerit/dry/option/img/fig_opt-l09a-02.png)
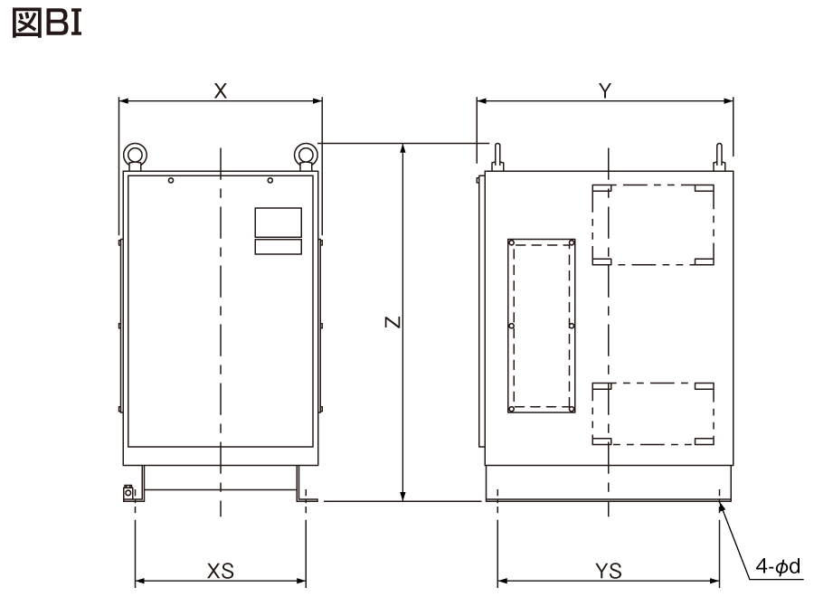
単相変圧器保護ケース付外形寸法
| 容量 (kVA) |
参照図面 | 外形寸法(mm) | 据付寸法(mm) | 保護ケース 質量(kg) |
||||
|---|---|---|---|---|---|---|---|---|
| X | Y | Z | XS | YS | d | |||
| 5 | 図BⅠ | 440 | 555 | 775 | 370 | 480 | M12ボルト用 | 30 |
| 10 | 440 | 555 | 1475 | 370 | 480 | M12ボルト用 | 30 | |
| 20 | 440 | 555 | 1475 | 370 | 480 | M12ボルト用 | 30 | |
| 30 | 440 | 555 | 1475 | 370 | 480 | M12ボルト用 | 30 | |
| 50 | 440 | 555 | 1475 | 370 | 480 | M12ボルト用 | 30 | |
| 75 | 図BⅡ | 900 | 860 | 1435 | 850 | 750 | 15 | 150 |
| 100 | 900 | 860 | 1435 | 850 | 750 | 15 | 150 | |
| 150 | 950 | 860 | 1710 | 900 | 750 | 15 | 170 | |
| 200 | 950 | 860 | 1710 | 900 | 750 | 15 | 170 | |
| 300 | 950 | 860 | 1710 | 900 | 750 | 15 | 170 | |
| 500 | 1100 | 900 | 1835 | 1050 | 750 | 15 | 200 | |
三相変圧器保護ケース付外形寸法
| 容量 (kVA) |
参照図面 | 外形寸法(mm) | 据付寸法(mm) | 保護ケース 質量(kg) |
||||
|---|---|---|---|---|---|---|---|---|
| X | Y | Z | XS | YS | d | |||
| 5 | 図BⅠ | 425 | 385 | 650 | 355 | 310 | M12ボルト用 | 20 |
| 10 | 425 | 385 | 650 | 355 | 310 | M12ボルト用 | 20 | |
| 20 | 535 | 515 | 735 | 465 | 440 | M12ボルト用 | 30 | |
| 30 | 535 | 515 | 735 | 465 | 440 | M12ボルト用 | 30 | |
| 50 | 535 | 515 | 735 | 465 | 440 | M12ボルト用 | 30 | |
| 75 | 図BⅡ | 1200 | 860 | 1435 | 1150 | 750 | 15 | 170 |
| 100 | 1200 | 860 | 1435 | 1150 | 750 | 15 | 170 | |
| 150 | 1200 | 860 | 1460 | 1150 | 750 | 15 | 170 | |
| 200 | 1200 | 860 | 1460 | 1150 | 750 | 15 | 170 | |
| 300 | 1330 | 860 | 1735 | 1280 | 750 | 15 | 200 | |
| 500 | 1330 | 860 | 1760 | 1280 | 750 | 15 | 200 | |
スコット結線変圧器保護ケース付外形寸法
| 容量 (kVA) |
参照図面 | 外形寸法(mm) | 据付寸法(mm) | 保護ケース 質量(kg) |
||||
|---|---|---|---|---|---|---|---|---|
| X | Y | Z | XS | YS | d | |||
| 5 | 図BⅠ | 465 | 440 | 590 | 395 | 365 | M12ボルト用 | 20 |
| 10 | 465 | 440 | 590 | 395 | 365 | M12ボルト用 | 20 | |
| 20 | 585 | 525 | 615 | 515 | 450 | M12ボルト用 | 25 | |
| 30 | 635 | 550 | 755 | 565 | 475 | M12ボルト用 | 30 | |
| 50 | 635 | 550 | 755 | 565 | 475 | M12ボルト用 | 30 | |
| 75 | 図BⅡ | 1055 | 725 | 1320 | 1005 | 610 | 15 | 100 |
| 100 | 1055 | 725 | 1320 | 1005 | 610 | 15 | 100 | |
| 150 | 1055 | 725 | 1345 | 1005 | 610 | 15 | 100 | |
| 200 | 1325 | 775 | 1655 | 1275 | 660 | 15 | 150 | |
| 300 | 1325 | 775 | 1680 | 1275 | 660 | 15 | 150 | |