配電用モールド変圧器
標準付属品・オプション 特長

配電用モールド変圧器

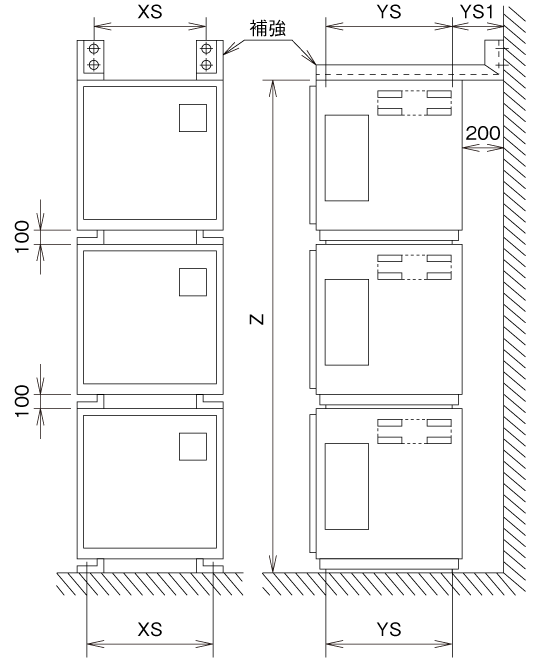
50kVA以下の同容量もしくは異容量で3段までの積重ねができます。また、単相と三相の組合せによる積重ねもできます。


| 相 | 容量(kVA) | 据付寸法(mm) | 積重ね用補強寸法(mm) | 高さ寸法(mm) | |||||
|---|---|---|---|---|---|---|---|---|---|
| XS | YS | YS1 | A | B | C | d | Z | ||
| 単相 | 5、10 | 370 | 480 | 230 | 735 | 480 | 230 | 15 | 2145 |
| 20~50 | 370 | 480 | 230 | 735 | 480 | 230 | 15 | 2145 | |
| 三相 | 5、10 | 355 | 310 | 230 | 565 | 310 | 230 | 15 | 1770 |
| 20~50 | 465 | 440 | 230 | 695 | 440 | 230 | 15 | 2025 | |