ここから本文
小さく
標準
大きく
防爆形GOTシリーズ
お問い合わせ
[
購入・見積もり
|
仕様・機能
|
よくあるご質問
]
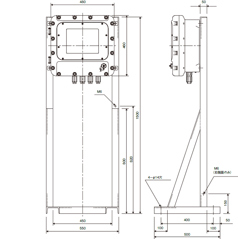
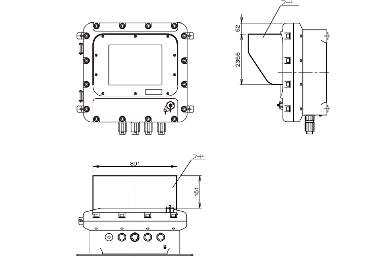
防爆形GT16 外形寸法
GOT本体
フード取り付け時の外形図
スタンド(直立ラック形) 取り付け時の外形図
GOT本体
ページトップに戻る
フード取り付け時の外形図
ページトップに戻る
スタンド(直立ラック形) 取り付け時の外形図
ページトップに戻る
サポート情報
国内外のサポート・販売拠点
国内サポート情報
国内拠点情報
海外サポート情報
海外拠点情報
製品利用に関する学習情報
定期トレーニングスクール
FA eラーニング
技術用語について
お問い合わせ
[
購入・見積もり
|
仕様・機能
|
よくあるご質問
]
ページトップに戻る